I'LLUME
33坪の土地で叶えた、四季と光の暮らし Owner's House in Tsukisamu
11月2日(日) 〜 11月9日(日)
10:00~17:00
札幌市豊平区月寒東2条
information
11月2日(日) 〜 11月9日(日)
10:00~17:00
※見学ご希望の方は、前日の17:00までにご予約をお願い致します。
このスタッフがご案内します!
Yûki .N
Hiroaki .K
Tomoyuki .K
Tôru .H
Kôta .S

point
- ワクワクする暮らしや想いを大切に。
- シンプルな外観と木をあしらった温かみのあるファサード。
- 心地よくも楽しいライフスタイル空間の提案。
間取りやデザインにこだわりながら、独自の技術で作り上げる高品質・高性能な住宅を実現。世代を超えて永く住み継がれる「Long Life Design」を形に。軒先のwoodデザイン・マテリアルなど「タケウチ」らしい基本的な要素を継承しながらも、素材感や色合いを大切に、より「私たちらしさ」を加えアップデート。


| 1F面積 | 43.89m²(13.75坪) |
|---|---|
| 2F面積 | 42.65m²(12.88坪) |
| 延床面積 | 86.54m²(26.13坪) |
| 敷地面積 | 111.59m²(33.75坪) |
お施主様のご厚意により、完成見学会を開催いたします。
ぜひこの機会に、明るさや広さ、素材の質感などホームページでは体感できない魅力・雰囲気をお楽しみください。
STORY
オーナー様とのご縁は、当社で建てていただいたご友人からのご紹介がきっかけ。
当初は建売住宅の購入を検討されていましたが、
「せっかくなら自分たちらしい家を」と、担当者とともに予算内で叶える注文住宅づくりがスタートしました。
希望のエリアに合わせて選んだのは、33坪のコンパクトな土地。
公園が目の前という立地を活かし、四季の移ろいを楽しめるよう、公園側に窓をたっぷりと設けました。
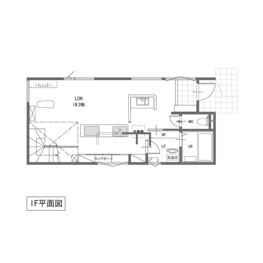
また、キッチン・洗面・浴室などの水廻りをぐるりと回遊できる家事ラク動線を採用。
日々の家事や支度がスムーズに進むよう工夫されており、忙しい毎日を手助けしてくれる嬉しい間取り。
無駄がなく、暮らしやすく、コストも抑えられる住まいづくりに興味がある方は、
ぜひ現地で理想の住まいをご体感ください!
都市ガス+【エコジョーズコレモ】
家計に優しい発電システム
エコジョーズコレモはおうちで発電、発電時の発生熱は暖房に有効活用。
寒冷地の冬の光熱費を抑える画期的なシステム。
暖房すると発電し、お家で使わない電気は北ガスが買い取ります!
さらに、発電時の排熱を暖房に活用できるので、おトクになります!
コレモがあれば災害時も安⼼!
冬の停電時にお湯や暖房、非常用コンセントが使えて安心です。
こんな方におすすめの見学会です
☑駅チカやコンパクトな土地で注文住宅を検討している方
☑外の景色を楽しみながら暮らしたい方
☑家事がしやすい回遊動線の間取りを体感したい方
☑予算内で理想の住まいを叶えたい方
ーご来場特典ー
WEB予約+アンケートに回答などの条件を満たしたお客様に先着で
SHIROの【ルームフレグランス】をプレゼント!
※プレゼントは先着順で、数に限りがありますのでご了承ください
※プレゼントはなくなり次第終了となります。
※特典は竹内建設のイベントに初めて申し込みされる方のみとさせていただきます。
※夫婦またはご家族での来場に限ります。
※事前アンケートとご来場アンケートを共にお答えいただける方を対象とさせていただきます。
information
11月2日(日) 〜 11月9日(日)
10:00~17:00
※見学ご希望の方は、前日の17:00までにご予約をお願い致します。
このスタッフがご案内します!
Yûki .N
Hiroaki .K
Tomoyuki .K
Tôru .H
Kôta .S
access
reservation
来場予約はこちら












