BAQOOLで暮らす たけうちオーナー様邸 見学会
12月13日(土)・12月14日(日)
午前の部:10時~12時
午後の部:14時~16時
(各回1組様限定)
札幌市、恵庭市
information
12月13日(土)・12月14日(日)
午前の部:10時~12時
午後の部:14時~16時
(各回1組様限定)
このスタッフがご案内します!
Yûki .N
Tomoyuki .K
Kôta .S
本本モデルハウスへご来場いただいたお客様に、1万円分の電子マネーをプレゼント!
さらに、2回目のお打ち合わせ時に追加で1万円分をプレゼントいたします。
詳細については、お問い合わせフォーム下のキャンペーン注意事項をご確認ください。
お好きな電子マネーをお選びください。


BAQOOLを採用した実際の暮らしを
オーナー様とBAQOOL設計者から直接聞ける
冬の家づくりで多くの方が不安に感じる「寒さ」「光熱費」「メンテナンス」について、実際に竹内で建てて暮らしているオーナー様と、BAQOOL設計者が、本音でお答えする見学・相談イベントです。
今回ご案内するのは、暮らし方や間取りが異なる3つのオーナー様邸。
実際の住み心地、BAQOOL採用の理由、メリット・デメリットまで含め、
遠慮なく質問できる貴重な機会となっております。
自然換気システム「BAQOOL」とは?
機械を使わず、エアコン1台で家中の換気、暖房、冷房を行える次世代の換気システムです。部屋ごとの温度ムラが少なく、メンテナンスが容易でランニングコストを抑えられることが魅力です。
■ BAQOOLの仕組み
給気口から取り込まれた新鮮な外気を床下で暖め、家全体に暖気を供給します。
暖められた空気は、家中をくまなく巡り、天井の排気口から必要な分だけ排気されます。排気されなかった空気は床下に戻り、外気と混ざりながら再び家全体を巡回します。
全館空調とは違い、機械やフィルターなどの余計なものは一切使用せず、エアコン1台で換気と空調を行うため、メンテナンス費用を最小限に抑えることができます。
極寒の北海道から猛暑の本州以南まで、エアコン1台で快適な空間を実現し、365日24時間、止まることなく換気を行います。
■ 札幌市における光熱費シミュレーション(36坪・4人家族を想定)
BAQOOL採用のオーナー様邸をご紹介
暮らし方や間取りが異なる3組のオーナー様邸をご紹介いたします。
家づくりの背景・BAQOOLを選んだ理由・実際の住み心地など少しだけお見せします。
■ 素材も性能も信頼で選んだ、あたたかいお家
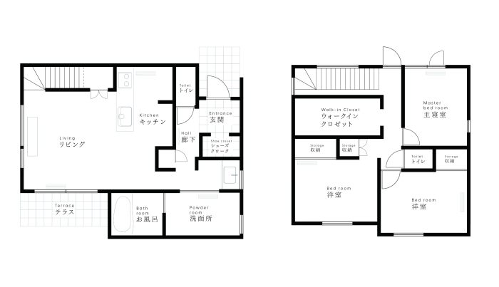
12月13日開催 I様邸
間取り:3LDK
家族構成:ご夫婦、お子様1人
釣り好きのご主人・ゲーム好きの奥様。
数社を検討する中で、営業担当の西村と一緒に釣りをしたことをきっかけに「この人になら任せられる」 と感じ、竹内に決めたそうです。
室内は、無垢床の温かみとBAQOOLの空気循環で、心地よく、冬でも寒さを感じにくい住まい。
太陽光との組み合わせで、素材もスペックも妥協しないお家が完成しました。
開催情報
2025年12月13日(土)
午前の部:10時~12時・午後の部:14時~16時 (各回1組様限定)
住所:札幌市北区北43条東5丁目
参加者:オーナー様+BAQOOL設計者スタッフ
■ 建築家と一緒に叶えた、光井戸のある陽だまりの家
12月13日開催 Y様邸
間取り:3LDK
「やりたいことが多かったからこそ、建築家の提案に助けられました」
そう語るY様ご夫婦の想いが詰まった住まいです。
転勤の多いご主人が「帰るたびにホッとできる家にしたい」と願ったことが、家づくりの出発点。
57坪の敷地にゆったりと計画された住まいは、暮らしやすさと、陽だまりのような心地よさを大切に設計されています。
さらにBAQOOLによる空気循環により、
冬でも家の中の温度ムラが少なく、どこにいても快適に過ごせる住環境が実現しました。
開催情報
2025年12月14日(日)
午前の部:10時~12時・午後の部:14時~16時 (各回1組様限定)
住所:恵庭市漁町
参加者:オーナー様
■ 理想のデザインと性能を一緒に考えた家づくり(ご予約が埋まりました)
12月14日開催 O様邸
間取り:2LDK
家族構成:ご夫婦
「家族でゆっくり過ごしたい」──そんな願いから始まったO様の家づくり。
映画を観たり、友人を呼んでBBQを楽しんだり、
家で過ごす時間を休日のように心地よくしたいという想いがありました。
竹内を選んだ理由は、断熱性能や光熱費面での安心感、
そして注文住宅ならではの好みのテイストを叶えられる柔軟さ。
打ち合わせはお仕事終わりの時間が多い中でも、ご夫婦はいつも前向きで、コーディネーターともたくさんの対話を重ねながら作り上げました。
さらにBAQOOLを採用することで、冬の暖かさや光熱費への安心感も備わり、
お二人らしい心地よいデザインと、性能面も妥協しない住まいが完成しました。
※ご好評につき、予約枠はすべて埋まりました。
開催情報
2025年12月14日(日)
午前の部:10時~12時・午後の部:14時~16時 (各回1組様限定)
住所:札幌市西区発寒7条14丁目
参加者:オーナー様+BAQOOL設計者スタッフ
目には見えないけど、大切な換気。
住んでからの快適さや光熱費は、室内の空気環境と設計で変わります。
今回の相談会では、実際の家づくりだけでなく「どうしてBAQOOLを選んだのか?」「光熱費は実際どれくらい?」「他空調システムとの違いは?」など
実際に暮らされているオーナー様の声とBAQOOL設計者から直接確かめていただけます。
皆さまのご参加を、心よりお待ちしております。
information
12月13日(土)・12月14日(日)
午前の部:10時~12時
午後の部:14時~16時
(各回1組様限定)
このスタッフがご案内します!
Yûki .N
Tomoyuki .K
Kôta .S
access
札幌市、恵庭市
reservation
来場予約はこちら
本本モデルハウスへご来場いただいたお客様に、1万円分の電子マネーをプレゼント!
さらに、2回目のお打ち合わせ時に追加で1万円分をプレゼントいたします。
詳細については、お問い合わせフォーム下のキャンペーン注意事項をご確認ください。
お好きな電子マネーをお選びください。


メールフォームからご予約
本本モデルハウスへご来場いただいたお客様に、1万円分の電子マネーをプレゼント!
さらに、2回目のお打ち合わせ時に追加で1万円分をプレゼントいたします。
詳細については、お問い合わせフォーム下のキャンペーン注意事項をご確認ください。
お好きな電子マネーをお選びください。


キャンペーン注意事項※必ずお読みください
- 本キャンペーンは、2025年12月1日~12月26日までの期間中に見学予約の上、期間中に見学いただいた新規のお客様が対象となります。
※ご見学の2日前までのご予約が必要となります。 - 先着20組様に達し次第キャンペーン終了となります。
- 当キャンペーンは初めて竹内建設にご来場いただく方が対象となります※過去にご来場いただいた方(他のモデルハウス、完成見学会、イベントにご来場いただいたことがある方含む)、すでにご商談中のお客様は対象外となります。
- ご予約時の事前アンケート、事前のお電話によるアンケート、見学後のアンケートにすべてご回答いただけた方が10,000円分のデジタルギフトプレゼントの対象となります。※事前アンケートはご予約フォーム送信後のページよりご回答をお願いします。
- 25歳以下の方、独身の方、日本に永住権をお持ちでない方は対象外とさせていただきます。
- 見学当日は同居予定の成人の方全員でのご見学をお願いします。
- 1時間以上の打ち合わせ時間の確保をお願いします。
- さらに、初回来場時に2回目のお打合わせのご予約をいただき、来場された場合に10,000円分のデジタルギフトプレゼントの対象となります。
- ご来場時に本人確認(運転免許もしくは健康保険)をご提示いただける方が対象となります。
- 一年以内にマイホームのご購入・建築を検討されていて、建築予定地が当社の施工エリア内のお客様が対象となります。
- ご予約状況により、建築予定の無い方、他社にて建築予定の方はご予約内容の変更・取消などをお願いすることがあります。
- 本キャンペーンは弊社ホームページから見学予約を頂いた方のみ対象とさせていただきます。
- デジタルギフトのお渡しは2〜3週間程でメールにて送付します。
- 本キャンペーンは予告なく終了する場合がございます。
- その他キャンペーンとの併用はできません。







