【実例あり】2階リビングのメリット・デメリットと後悔しない対処法を解説
2025/03/05
目次
リビングは家族の団らんの場であり、生活の中心になる重要な空間です。一般的に戸建て住宅のリビングといえば1階でしたが、近年では2階にリビングを設ける住宅も増えてきました。しかし、実際に2階リビングを検討してみると「2階リビングはデメリットが多いのでは?」「2階リビングのイメージがしにくい」と悩む方も少なくありません。
そこで、この記事では2階リビングのメリット・デメリット、負担が少ない2階リビングにするための対処法、2階リビングの施工事例をご紹介します。2階リビングが向いているケース・不向きなケースについても解説しますので、ぜひ参考にしてみてください。
2階リビングのメリット・デメリット比較表
2階にリビングを設置した場合のメリット・デメリットを表にまとめました。
| メリット | デメリット |
| ・明るさや風通しを確保しやすい ・外部の視線を気にせず過ごせる ・天井の高い開放的な空間をつくれる ・耐震性を高めやすい |
・上下の移動に負担がかかる ・夏場は暑くなりやすい ・家族間のコミュニケーションが減る ・1階の様子がわかりづらく防犯面に不安が残る |
2階リビングは、開放感があり落ち着いた環境を実現できる一方、1階が居室になることで考慮すべき課題もあります。
2階リビングのメリット4選
2階リビングには、1階にリビングを配置するケースとは異なるさまざまなメリットがあります。それぞれのメリットについて詳しく見ていきましょう。
明るさや風通しを確保しやすい
2階リビングは1階リビングと比べると高さがあり、日当たりや風通しが良くなります。そのため、自然光を住宅内に取り入れる採光性を重視したいものの、1階リビングでは実現できない場合に、2階リビングが選ばれる傾向があるのです。
住宅が密集した地域では、広い庭の確保が難しく、高さのある住宅が多くなります。縦長の建物が近隣にあると1階は影になりやすく、日当たりや風通しの良さが見込めません。
そこで、2階にリビングを設置すれば、大きな窓がなくても「高窓」や「天窓」の配置次第で光や風が入り、明るい印象のリビングをつくれます。高窓とは高い位置の壁につける窓を指し、天窓は天井や屋根面につける窓をいいます。
家族が長い時間を過ごすリビングは自然光が取り込める2階に設けて、主に夜間になってから利用する寝室は1階につくると、効率の良い住環境をつくれるでしょう。
外部の視線を気にせず過ごせる
2階リビングは、プライバシーを確保したい場合にも有効です。
1階にリビングがあると住宅前の通行人や密接した隣家の住人の視線など、プライバシーが気になる方も多いのではないでしょうか。昼間でも外からの視線を遮るためにカーテンを閉め切って、薄暗い中で過ごす人もいるかもしれません。
一方で、2階リビングは道路から離れた高い位置にあり、外からは見えにくくなります。家族のプライバシーも確保できて、快適に過ごせるでしょう。
天井の高い開放的な空間をつくれる
2階リビングでは、天井の高さを活かして開放的な空間をつくれます。
1階の天井の高さは2階の居室を考慮して制限されますが、2階リビングは上階に部屋がなければ天井を屋根近くまで高く設置することが可能です。屋根の傾斜を利用した勾配天井を採用すると、視覚的にも広さを感じられるリビングや、ロフトなどの収納スペースも設置できます。
また、2階リビングは眺望を楽しめる点も大きなメリットです。窓からの景色を楽しめるのはもちろん、セカンドリビングとしてバルコニーをつくれば外とゆるやかにつながって、風景を堪能しながら食事を満喫できるでしょう。
耐震性を高めやすい
2階にリビングをつくると、建物が地震の揺れに耐えるための「耐力壁」が1階に増えるので、耐震性を高めやすくなります。
2階リビングの家では、1階に寝室や子供部屋などの居室が多くなるのが特徴です。1階に部屋数が増えると、上階を支える壁や柱も増えて構造が安定しやすくなり、結果的に耐震性も高まります。
耐震性の高い住宅は、災害の多い日本に暮らすうえで家族の安全を守り、住宅の大きな損壊を防げるので、安心です。
2階リビングのデメリット4選と後悔しないための対処法
2階リビングを実現するには、メリットだけでなくデメリットも理解しておきましょう。ここでは、2階をリビングにしたときのデメリットと、それぞれの対処法を紹介していきます。
上下の移動に負担がかかる
リビングが2階にあると、階段での移動が増えます。
キッチンとダイニングを合わせたLDKにした場合、買ってきた食材を2階まで運搬しなければなりません。お米や飲料などの重い荷物を持って階段の上り下りをする必要があるので、重労働に感じる可能性もあるでしょう。
買い物だけでなく、宅配の荷物の受け取り、来客時の対応や外出時にも階段での移動が必要で、高齢になってから生活しづらくなるかもしれません。
【対処法】負担が少ない階段をつくる・リフォームを視野に入れておく
2階リビングの負担を少なくする対処法として、毎日の生活をシミュレーションして移動が少なくなる動線を考えると良いでしょう。
たとえば、次のような方法が挙げられます。
・玄関から階段まで、階段を上がってからキッチンまでの距離を短くする
・洗濯動線を2階にまとめて階段の移動をなくす
・1階で生活が完結できるようにする
・モニター付きインターホンや宅配ボックスを設置して対応回数を減らす
高齢になってからの生活を考慮して、ホームエレベーターや荷物だけを運べる小荷物昇降機の導入を検討するのも選択肢のひとつです。あらかじめ設置できるスペースを確保しておき、リフォームを視野に入れておくと良いでしょう。
ただし、ホームエレベーターの導入費用は1〜2人乗りで300万〜500万円程度かかります。年間7万〜10万円程度の維持費も必要となるなど、コストがかかる点は把握しておきましょう。
夏場は熱くなりやすい
2階リビングは、夏場は熱くなりやすいのが特徴です。これは、家の中の熱気は上にたまりやすく、高い位置にある窓からの直射日光が入り室温が上がるためです。屋根から伝わる熱も、2階リビングの室温に影響を与えています。
室温が高いと、2階のキッチンでは食材が傷みやすくなります。暑さに弱いペットにも配慮してあげましょう。
【対処法】断熱・空調の性能を高める
2階リビングの夏場の暑さを軽減するには、家全体の断熱性を上げ、高性能な空調を導入すると良いでしょう。
具体的には、次のような対策があります。
・断熱材の量と厚みを増やす
・軒の長さを調整して直射日光を遮る
・テラスやベランダに日よけになるシェードやオーニングを取り付ける
直射日光が部屋に当たらないようにするだけでも、室温の上昇を防いで快適な温度を保ちやすくなります。
上記の対策に加えて、シーリングファンの設置も有効です。シーリングファンは空気をかき混ぜて循環させるので、室温の上昇を防ぐ効果が期待できるほか、冷暖房効率の向上によって光熱費の節約にもつながるでしょう。
家族間のコミュニケーションが減る
2階にリビングを設置すると、家族間のコミュニケーションがとりにくくなる可能性があります。
2階リビングは1階に子供部屋やそれぞれの居室を配置するケースが多く、帰宅後にリビングを通らずに居室に直行できるつくりです。そのため、家族の外出や帰宅に気付きにくくなり、顔を合わせる機会が減る傾向があるのです。
子供部屋が1階にある場合は子供の意思で2階に上がる必要があるため、親子のコミュニケーションの機会が減る可能性があります。
【対処法】子供部屋や階段の配置を工夫する
2階をリビングにしてもコミュニケーションを取りやすくするには、リビングを通って個室に行くような動線を考えましょう。
たとえば、次のような方法が挙げられます。
・子供部屋を2階に配置する
・リビングの一角を仕切ってワークスペースや勉強部屋として使う
・洗面所や浴室はリビングを通ってアクセスできる間取りにする
・玄関を吹き抜けにする
・階段の上り口を玄関付近、下り口をキッチン付近に配置する
できるだけ家族が接触しやすい動線を検討するのがおすすめです。1階の子供部屋は、子供が成長して個室を希望したタイミングから活用するのも良いでしょう。
1階の様子がわかりづらく防犯面に不安が残る
2階にリビングを配置し、2階が生活の中心になると、1階の様子がつかみにくくなります。
たとえば、不注意で窓やドアのカギが開いたままになっていたり、不審者が侵入しても気付きにくかったりと、防犯面で不安が残るでしょう。1階に子供部屋を設置していると、不安の大きさから、物音がする度に様子を見に行くといった行動も多くなるかもしれません。
【対処法】開口部や外周の防犯性を高める
対処法は、開口部や外構に防犯設備を取り入れて防犯性を高めると良いでしょう。
以下のような防犯宅策がおすすめです。
・防犯性の高いドア、窓を選ぶ
・玄関ポーチの照明を人感センサー付きにする
・シャッターや防犯ガラスを設置する
・外周に砂利を敷く
・ホームセキュリティーを導入する
・宅配ボックスを設置する
このほかにも、窓を高い位置に設置するのも有効な防犯対策です。
2階リビングが向いているケース・不向きなケース
2階リビングは魅力的な設計ですが、住宅の状況によっては適さないケースもあります。ここでは、2階リビングが向いているケースと不向きなケースをご紹介します。
2階リビングが向いているケース
2階リビングが向いているのは、以下のようなケースです。
・都市部などの住宅密集地や狭小地に建てる
・眺望を楽しみたい
・車を複数台収納したい
人や建物の多い都市部や住宅密集地では、1階リビングよりも2階リビングの方が光や風を入れやすくなり、道路からの視線も気にせずに過ごせます。2階リビングは、1階リビングだと快適性が低くなる場合に向いているといえるでしょう。
周囲が公園や山、海が見える立地で眺望を楽しみたい方も、高さのある2階リビングが向いています。住宅内に車を複数台収納できるビルトインガレージは、1階部分をガレージ、2階リビングにすることで実現できる間取りです。
2階リビングが不向きなケース
2階リビングが向いていないのは、以下のようなケースです。
・同居する家族に高齢者がいる
・広い土地に建てる
・暑さに弱いペットと住んでいる
同居する家族に高齢者がいると、階段の移動が大きな負担になり、一緒に暮らすのも難しくなるかもしれません。広い土地があり1階にリビングを設けても問題がない土地で2階にリビングを設置するのも、動線が悪くなり不便になる可能性があります。
暑さに弱いペットにとって、夏場の室温が上がりやすい2階リビングで過ごすのは大きなストレスになります。涼しい場所を確保するなど、暑さを軽減する対策を重視しなくてはなりません。
2階リビングの施工事例4選
2階リビングを検討していると「2階リビングはイメージがしにくい」と悩む方も多いのではないでしょうか。
ここでは、2階リビングの施工実績が豊富な竹内建設による実際の施工事例をご紹介します。2階リビング検討中の方は、ぜひ参考にしてみてください。
美しいピクチャーウィンドウと温もり感じる木目調デザインの2階LDK
2階リビングを採用することで、住宅密集地でも効率的に開放感のある住まいをかなえた施工事例をご紹介します
帰宅後の動線を考えて、玄関から階段までの距離、階段からキッチンまでの距離が短く設計されています。
1階は浴室・洗面所・ファミリークローゼットがあり、朝の身支度や就寝前の移動がスムーズです。
居室は、仕切りができるように扉が2つ付けられています。居住人数に合わせて2LDKから3LDKへと変更でき、将来性も考慮されています。
2階リビングの大きな窓は、景色を切り取る美しいピクチャーウィンドウ。採光がお部屋を広く見せてくれます。
リビングを見渡せるオープンキッチンでは、子供や家族の様子をみながら料理できます。
リビングとつながるように木目調で合わせ、まるでインテリアのようなおしゃれで温もりのあるキッチンに仕上がっています。
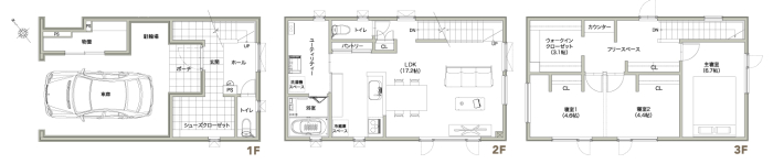
愛車を守れるビルトインガレージ付きのスタイリッシュな3階建て
雨や雪から車を守れるビルトインガレージ付きの3階建て住宅の施工事例です。
▼拡大してご覧ください。
車を降りてからの帰宅動線や、水まわりを2階に集約した家事動線が効率よく設計されています。
ビルトインガレージと玄関がつながっており、雨や雪などの天候を気にせずに荷物の搬入・搬出ができます。
玄関まわりには、靴やアウトドア用品をスッキリ片づけられる大容量シューズクローゼットや手洗い場を設置。帰宅後の動線が考慮されています。
2階リビングはキッチンとダイニングが配置されたLDK。アクセントクロスが家具を引き立て、おしゃれでスッキリとした印象です。
キッチンの奥には浴室・洗面台・ランドリールームを完備。
2階に水まわりをまとめて家事動線や洗濯動線をコンパクトにすることで、効率的に家事をこなせるような工夫が施されています。
日が入りやすい3階は、開放感のある印象に。広い居室は、仕切りができるように扉が2つ付けられていて、家族の人数に合わせて3LDKにリフォームできます。
3階建ての2階リビングは、2階を経由してからそれぞれの居室に行く設計で、家族間のコミュニケーションも取りやすい間取りです。
一体型ダイニングキッチンとオープンガレージのあるモダンハウス
1階にシャッターなどがないオープンガレージを設置。車の入出庫や乗り降り、荷物の運搬がスムーズです。
ガレージからつながる玄関には広々としたシューズクローゼットを配置。すぐ階段があるので、ガレージから2階リビングへアクセスしやすい間取りです。
1階に設置された洗面所・脱衣所には広い洗面台とパウダーコーナーを設置。大きな鏡はまるでホテルのような、おしゃれでモダンな印象です。
階段を上がったリビング横には、大容量の収納スペースを確保。リビングをスッキリさせられる工夫です。
採光が入るように窓を高い位置に設置し、明るいリビングに。
キッチンとテーブルを横並びにした「一体型ダイニングキッチン」と、天井の一部を下げて段差をつくる「下がり天井」を導入したこだわりのLDKです。
ロケーションを活かした景色が主役の2階LDK
周囲の環境を上手に活かした2階リビングの施工事例です。
玄関に入るとすぐに階段と収納スペースがあり、食品や日用品の運搬も負担が軽減されるように考慮されています。
2階リビングは、キッチンとダイニングがあるLDK。
キッチンとダイニング側にも、たくさんの窓が配置されていて、レストランのように窓の外を眺めながら料理や食事が楽しめます。
リビング横には小上がりを配置し、景色を眺めながらくつろげるスペースになっています。
一面の雪景色というロケーションを活かし、リビングには大きな窓を設置。たくさんの光を取り入れて、開放的な空間を実現しています。
椅子に腰をかけて時間帯によって変わる美しい景色を眺めれば、至福のひとときを満喫できます。
採光や眺望など、1階リビングでデメリットとなりやすい部分も、2階リビングにすることで強みになるとわかりました。
1階リビングのデメリットを活かし、おしゃれで効率性や機能性の高い2階リビングをつくりたいと考える方は、ご紹介した施工事例を参考にしてみてください。
2階リビングのご相談は竹内建設へ
2階リビングをつくるなら、デザインや動線だけでなく、断熱性などの住宅性能までこだわりぬきたいと考える方も多いのではないでしょうか。
竹内建設では、暮らすご家族の希望を形にしていくデザイン力、暮らしの安心を支える基礎工法と20年間の建物保証で理想の家づくりをサポートしています。2階リビングで最も重要な断熱性は、一般的に使われる断熱材よりも熱が逃げにくく、性能が高い「J断熱枠」を採用しており、省エネ性能の高い住宅建設が可能です。
「おしゃれで自分らしい家づくりがしたい」
「断熱性・気密性にこだわって設計したい」
2階リビングのある家づくりをご検討中の方は、ぜひご相談ください。
▶︎お問い合わせはこちらから
まとめ
2階リビングは採光や風通し、眺望を良くし、家族のプライバシーを守れるといったメリットがあります。老後の不安や防犯面などのデメリットもありますが、対策次第で快適に過ごせて、満足度の高い住宅をつくることも可能です。
大切なのは「どんな暮らしがしたいのか」をイメージして計画を立てることです。実現したい暮らしがあると、デメリットの対策も立てやすくなり、心地よい家づくりにつながります。
まずは、ご紹介した施工事例を参考に理想の暮らしを思い描き、2階リビングの最適な配置を検討してみてはいかがでしょうか。





