平屋の坪数はどのくらいがベスト?平均と土地選びのポイントを解説
2025/03/21
目次
平屋での暮らしに憧れる一方で、土地や間取りの広さに悩む方は多いのではないでしょうか。「広すぎると持て余しそうだし、狭すぎると後悔しそう…」そんな不安を抱えながら、情報収集に奔走している方もいるかもしれません。
この記事では、平屋の最適な坪数について、平均的な広さや家族構成に合わせた広さ、土地選びのポイントなどをまとめて解説します。平屋の間取り事例もご紹介しますので、理想の平屋を実現したい人は、ぜひ参考にしてください。
平屋の平均坪数とは?
平屋の平均坪数は、家族構成やライフスタイルによって大きく異なります。一人暮らしであれば20~25坪程度、夫婦二人暮らしであれば25〜30坪程度が平均的な広さです。お子さんがいるご家庭では、30坪以上となることが多いでしょう。
また、地域によっても平屋の平均坪数には違いが見られます。都市部では土地の価格が高いため、比較的コンパクトな平屋が多い傾向があります。一方、郊外や地方では広い土地を確保しやすいため、ゆとりのある平屋を建てることが可能です。
さらに、同じ家族構成でも、ライフスタイルによって必要な広さは異なります。趣味のスペースを充実させたい方や、在宅ワークをする機会が多い方は、広めの坪数を検討すると良いでしょう。
平屋の適正な坪数の数え方
平屋の坪数を検討する際は、平均的な広さを参考にしながらも、ライフスタイルや必要なスペース、将来の暮らしも考慮することが大切です。「何坪あれば快適に暮らせるの?」と疑問に思う方に向けて、平屋の適正な坪数の決め方をご紹介します。
ライフスタイルに合わせた広さの目安
平屋の適正な坪数が分からない場合は、まずライフスタイルに合わせた広さを知りましょう。
コンパクトに暮らしたい場合は、20坪台の平屋がぴったりです。シンプルな間取りで、掃除や管理がしやすいのが魅力と言えます。一人暮らしや夫婦2人暮らしに向いているでしょう。
また、ゆとりをもとめるなら30坪以上の平屋がおすすめです。部屋数を増やしたり趣味のスペースやワークスペースを設けられるため、子どものいる家庭や、将来的に家族が増える可能性が高い家庭に適しているでしょう。
さらに、充実した趣味スペースを確保したいなら40坪以上の平屋が理想的です。シアタールームや書斎、ガーデニングスペースなど、趣味に没頭できるスペースを作ることができるでしょう。また、平屋ならではの開放感も満喫できます。
部屋数と必要なスペース
平屋の坪数を決める際は、各部屋に必要な広さを把握することも重要です。
家族が集まるリビングは、ゆとりのある空間が理想です。広さは8〜12帖ほどを目安にすると良いでしょう。同じように、キッチンなら4〜6帖、寝室なら6〜8帖、子ども部屋なら4.5〜6帖程度の広さが目安になります。家族構成やライフスタイル、必要な収納力に合わせて調整が必要です。
たとえば、4人家族で計55帖が必要な広さの場合は、1帖=0.5坪で総坪数は約27.5坪です。
各部屋に必要な広さを考えれば、平屋の総坪数を決めやすくなりますね。
・LDK:20帖(10坪)
・ユーティリティ:3帖(1.5坪)
・お風呂:2帖(1坪)
・トイレ:1.25帖(0.625坪)
・寝室:8帖(4坪)
・子ども部屋:6帖×2部屋(6坪)
・ファミリークローゼット:4帖(2坪)
・玄関+収納、ホール:4.75帖(2.375坪)
将来的な住みやすさを考慮
ライフスタイルや家族構成は、生涯にわたり変化していくものです。
たとえば、子どもが成長すると個室が必要になったり、勉強スペースを確保したりする必要があります。逆に、子どもが独立すれば夫婦二人の生活に戻るので、部屋を持て余すケースもあるでしょう。
このように、将来的な変化に合わせて柔軟に対応できる平屋を作るためには、間仕切りを設けたり、部屋の用途を変えたり、可変性のある間取りをおすすめします。また、バリアフリーにも考慮して、長く快適に暮らせる坪数を検討してみてください。ライフスタイルや家族構成は、生涯にわたり変化していくものです。
たとえば、子どもが成長すると個室が必要になったり、勉強スペースを確保したりする必要があります。逆に、子どもが独立すれば夫婦二人の生活に戻るので、部屋を持て余すケースもあるでしょう。
このように、将来的な変化に合わせて柔軟に対応できる平屋を作るためには、間仕切りを設けたり、部屋の用途を変えたり、可変性のある間取りをおすすめします。また、バリアフリーにも考慮して、長く快適に暮らせる坪数を検討してみてください。
【間取り×土地】家族構成別の平均坪数
平屋に必要な広さの間取りや土地は、家族構成によって大きく違います。先ほど紹介したライフスタイルや将来の暮らしを考慮する必要もありますが、まずはベースとして考えたい家族構成別の平均坪数についてご紹介します。
一人暮らし向けの平屋(20~25坪)
20〜25坪のコンパクトな平屋は、一人暮らしに最適です。限られた空間でも、間取りや家事動線の工夫で快適な生活を送れます。ミニマリストなら、持ち物を厳選することでよりコンパクトな平屋で生活することができるでしょう。
間取りは1LDKが基本です。LDKや水回り、寝室や収納を効率よく配置しましょう。リビングと寝室を引き戸で仕切れば、必要に応じて空間を区切ることができ、多様な使い方ができます。
また、キッチン・洗面所・浴室を一直線に配置すれば、家事動線が効率化されて毎日の家事が楽になるでしょう。収納は、壁面を最大限に活用することで限られたスペースを広く使えます。クローゼットや棚を壁に造作すれば、見た目もすっきりして収納力も上がるためおすすめです。
シニア世代の場合、段差のないバリアフリー設計や生活動線が短い間取りを取り入れましょう。
夫婦2人向けの平屋(25~30坪)
夫婦2人の家庭はもちろん、子どもが独立して夫婦だけになった世帯が平屋で暮らす場合、25〜30坪が目安です。部屋数が多くなくても、これほどの広さならゆったりしたリビングや寝室、趣味のスペース、そして十分な収納スペースを確保できます。
たとえばリビングは、夫婦2人がくつろげる広さが理想です。ソファやダイニングテーブルを置いても、ゆとりがある間取りを意識してみましょう。
将来的に介護が必要になった場合、車椅子での移動もできるよう、バリアフリー化も考慮しておくと安心です。通路幅を広めに確保し、段差をなくして手すりを設置するなど、安全で快適な生活を送れるように配慮しましょう。
3~4人家族向けの平屋(30~35坪)
子育て世帯が快適に暮らすのに十分な平屋は、30〜35坪の広さです。
たとえばリビングは、15〜20帖ほどの広さがあると、家族みんながゆったりとくつろげます。子どもたちが遊んだり、勉強したりすることもできるでしょう。
また、家族の持ち物を整理する収納スペースを各部屋に設けたり、納屋や小屋裏収納を設けたりするのもおすすめです。家事動線を意識して、キッチンや洗面所、浴室などを効率的に配置しましょう。
子ども部屋を作るなら、1人につき4.5〜6帖の広さが目安です。将来に備え、可変性のある間取りを取り入れても良いでしょう。
5人以上・二世帯向けの平屋(40坪以上)
大人数で暮らす場合は、リビングやダイニングを広めに確保し、快適に過ごせる空間づくりが大切です。また、プライバシーを守るための個室の確保や、十分な収納スペースを設けることも重要なポイントです。
もしも二世帯住宅にするなら、生活空間を完全に分けた完全分離型にするのか、水回りなどの一部を共有する部分共有型にするのか、また生活空間をすべて共有する共有型にするのかで間取りが大きく変わります。部分共有型、共有型なら空間にゆとりが生まれますが、完全分離型にするなら坪数の多い平屋が理想的。ライフスタイルに合わせて自由に設計しましょう。
土地選びの4つの注意ポイント
平屋を建てるための広さの目安について解説しましたが、広さ以外にも土地選びで注意したいポイントがあります。
・最低限の土地面積
・日当たりや風通し
・敷地の高低差
・土地価格と建築費用の関係
2階建て、3階建ての一戸建てにはない平屋ならではの特性を理解するためにも、次に紹介するポイントを抑えておきましょう。
最低限の土地面積
土地探しを始めると、建ぺい率と容積率という聞きなれない用語を耳にすることがあるでしょう。
建ぺい率は、敷地面積に対する建築面積の割合です。土地ごとに上限が指定(30〜80%)されており、建てられる建物の広さが決まります。たとえば60坪で建ぺい率が50%の土地なら、建築面積の上限は30坪です。
建ぺい率が大きいほど敷地面積は小さくなるため、土地探しのハードルは低くなりますが、建ぺい率が高い土地でも敷地ギリギリに平屋を立てれば、さまざまな不具合が生じるので注意しなくてはなりません。
容積率は、敷地面積に対する延べ床面積の割合です。単純な話、容積率100%の土地なら、100坪の土地に対し延べ床面積100坪の建物を建てることができます。
しかし、理論上敷地いっぱいに建物を建てられたとしても、このままでは敷地内に駐車スペースや庭を設けることが困難です。仮に30坪程度の平屋を建てるなら、50坪以上の土地が必要になることが多いでしょう。
建ぺい率や容積率には緩和規定もあります。内容は複雑なので、建築士に相談のうえ法的な制限や緩和規定を確認してください。
建ぺい率・容積率に関するくわしい内容は、当コラムの「土地探しの前に知っておきたい「建ぺい率」と「容積率」とは?基礎知識について解説」をご覧ください。
日当たりや風通し
平屋は2階がないため、建物に囲まれている土地の場合は、日当たりや風通しが悪くなることがあるので注意しましょう。
また、南向きの土地は日当たりが良いメリットがありますが、周囲に高い建物があると、日当たりが悪くなることがあります。土地探しをする際は、周辺の建物やその高さ、配置をよく確認しましょう。
高低差のある敷地
高低差がある土地は、眺望がよくプライバシーを確保しやすいなどのメリットもありますが、平坦な土地と異なり、造成工事が必要になるため建築コストが高くなる傾向があります。工事期間も長くなるでしょう。
高低差のある敷地に平屋を建てるなら、造成費用の見積もりを依頼したり、工事期間やバリアフリー設計についても検討すると良いです。また、土地の形状によっては平屋を建てることが難しいケースもあるため、事前に土地の形状を確認しておきましょう。
土地価格と建築費用の関係
土地は、地域によって相場が大きく変わります。土地の価格は駅からの距離や周辺環境に影響されるため、利便性の良い都市部に平屋を建てるなら、土地代も高くなります。
平屋を建てるうえで、建築費用と土地代のバランスは重要です。高額な土地を購入すれば、そのぶん建築費用にかける予算が減るため、建材や設備のグレードを下げなくてはならなくなります。逆に、安価な土地を購入すれば建築費用に余裕ができるので、品質の高い建材や最新設備を導入できます。
建築費用と土地価格のバランスを考えて、予算配分をしましょう。
ちなみに、土地の相場を調べる際は、価格を知りたい土地に近い地価公示が参考になります。国交省のウェブサイト「不動産情報ライブラリ」が便利です。
都市部vs郊外での坪数の違い
前述の通り、都市部は利便性が高いことから土地価格が高く、坪数も狭い傾向にあります。そのため、都市部で平屋を建てるならコンパクトな間取りになることが多いです。限られたスペースを有効活用し、快適な生活空間を作る工夫が必要となるでしょう。一方、郊外はその逆で、ゆったりとした広さの平屋を建てることができます。
また、北海道でも都市部と郊外では土地価格や利便性に大きな違いがあります。
たとえば札幌市中央区の場合、坪単価は約89万円と高めです。しかし、商業施設がそろっていたり、交通機関が充実していたりと生活利便性が高いのが魅力と言えます。
一方、札幌近郊の江別市や石狩市は、坪単価が約9〜16万円と大きく下がります。ただし、利便性も下がるため、自家用車必須の暮らしとなるでしょう。また、札幌10区の中でも、郊外に近いエリアは近郊エリアと同じくらいの土地価格が多いです。
このように、自身やご家族のライフスタイル、予算に合わせて都市部か郊外かを選んでみてください。
※参考:土地代データ/2024年[令和6年] 基準地価
平屋の間取り事例を5つご紹介
ここまで、平屋の坪数や土地探しについて解説しましたが、さらに具体的なイメージを持ってもらうために、平屋の間取り事例を5つご紹介します。快適に暮らせる工夫についても解説するので、家族構成やライフスタイルに近い事例があれば、ぜひ参考にしてください。
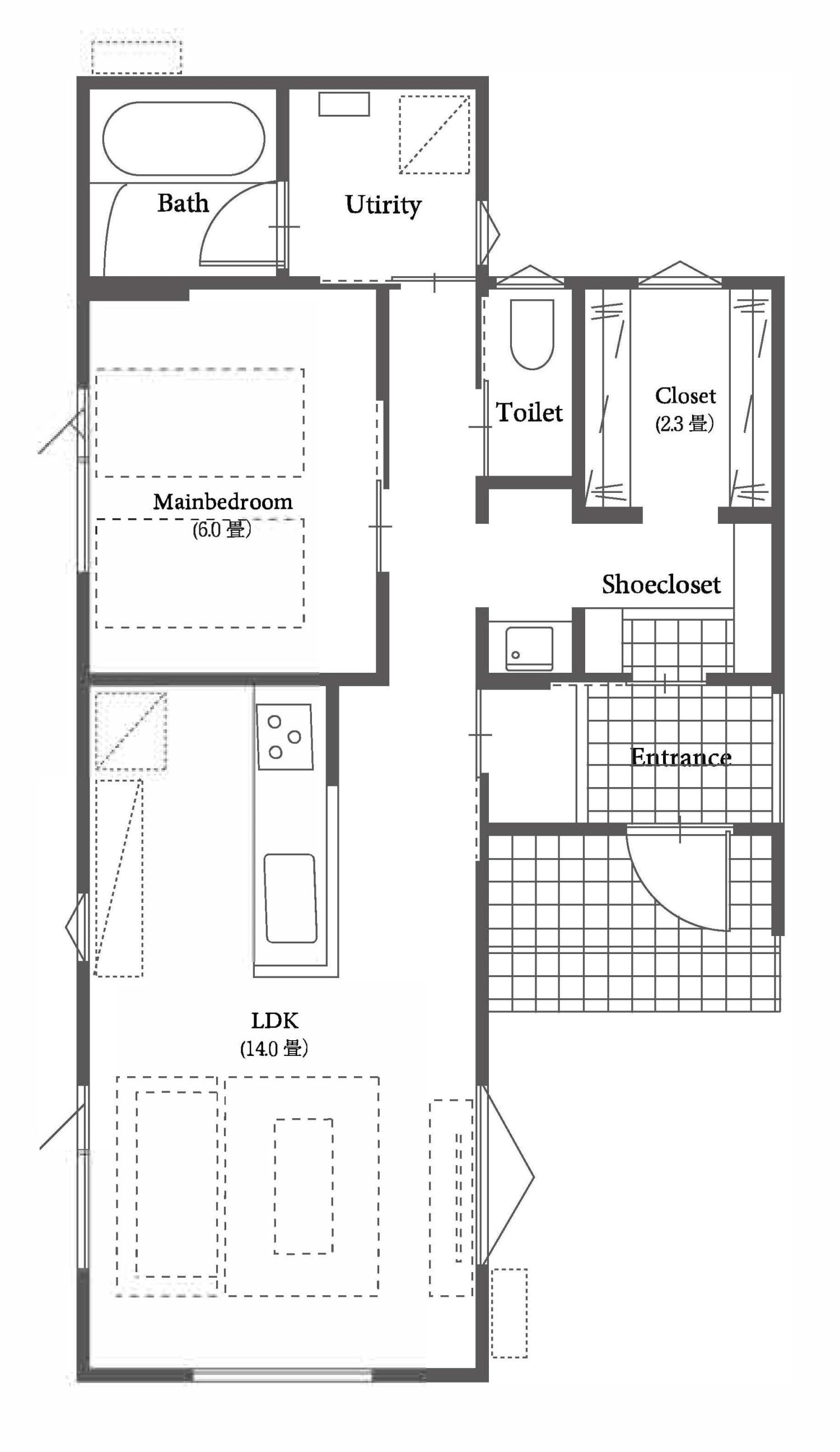
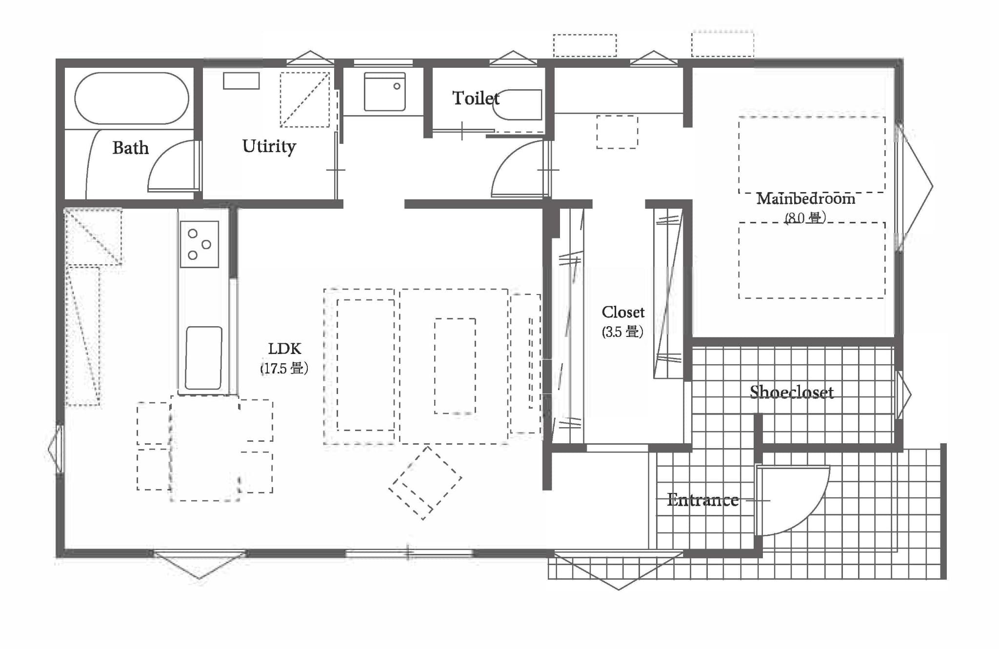
【単身・夫婦2人暮らし向け】コンパクトながら空間にゆとりのある平屋
17.5帖の広々としたリビングが魅力の、1LDK平屋。開放感あふれる空間で、日々の疲れも癒します。ベッドルームには、3.5帖のワイドなウォークインクローゼットを配置。収納力抜群で、衣類や小物もすっきりします。コンパクトながらも快適な、理想の住まいです。
◇土地面積の広さ目安
第一種低層住居専用地域:172㎡以上(52坪以上)
第二種中高層住居専用地域:143㎡以上(44坪以上)
※諸条件により異なります。
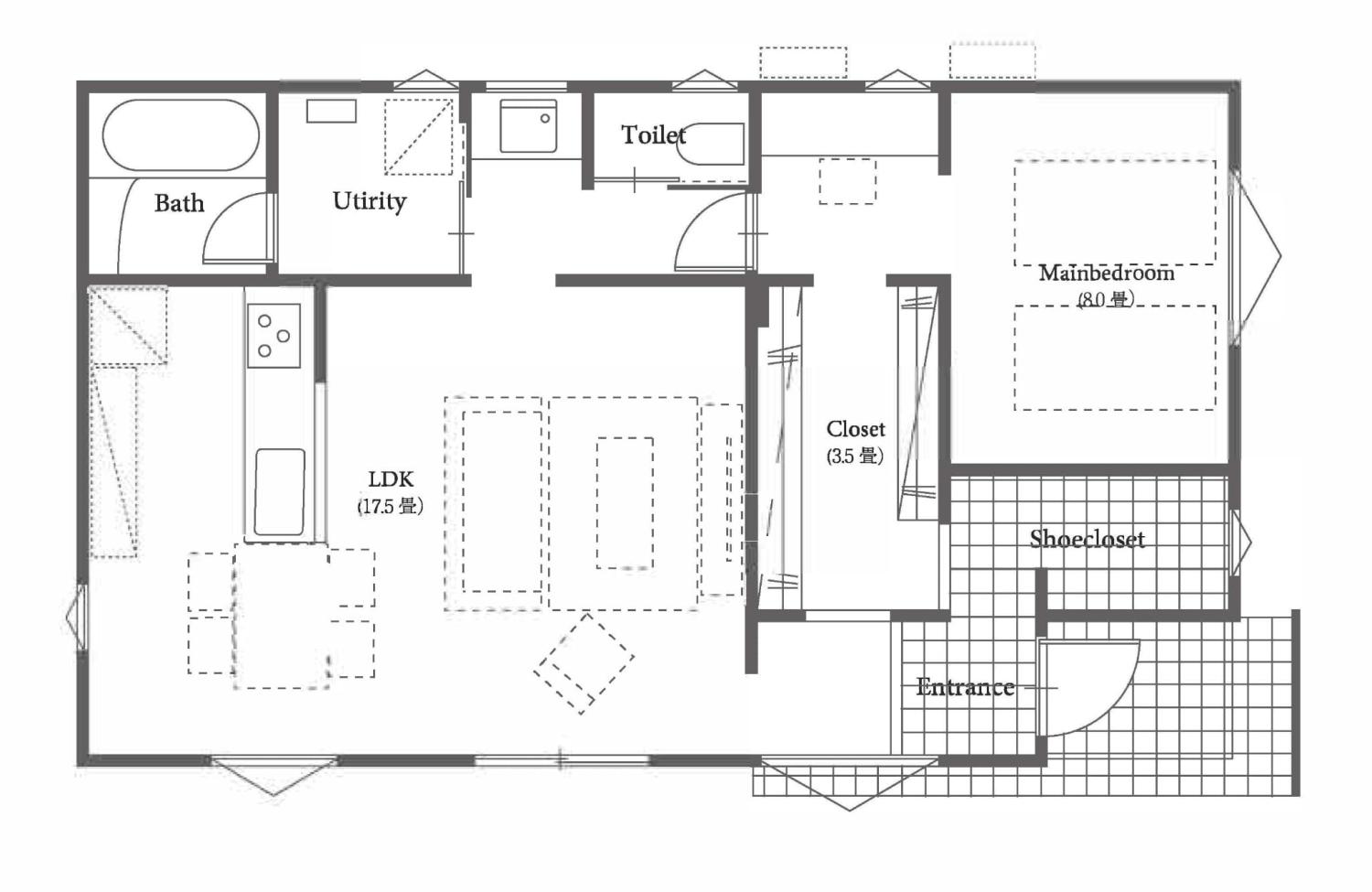
【単身・夫婦2人暮らし向け】おかえり動線のある平屋
エントランスの正面には、大容量のウォークインクローゼットを配置。収納力抜群で、すっきりとした空間を保てます。リビング入口には洗面台を配置。帰宅後すぐに手洗いができ、衛生面も安心です。動線にもこだわった、快適な1LDK平屋です。
◇土地面積の広さ目安
第一種低層住居専用地域:135㎡以上(41坪以上)
第二種中高層住居専用地域:112㎡以上(34坪以上)
※諸条件により異なります。
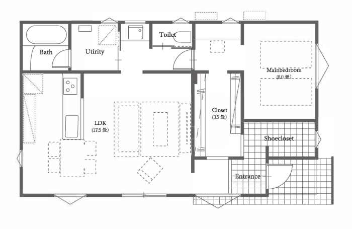
【2~3人家族向け】収納にこだわった平屋
収納充実の2LDK平屋。ウォークインタイプのシューズクローゼットで玄関もスッキリします。寝室には3帖のウォークインクローゼットを設け、こちらも収納力も抜群です。また、パントリーを設け、家事動線にもこだわりました。快適さと収納力を兼ね備えた、暮らしやすい住まいです。
◇土地面積の広さ目安
第一種低層住居専用地域:114㎡以上(35坪以上)
第二種中高層住居専用地域:95㎡以上 (29坪以上)
※諸条件により異なります。
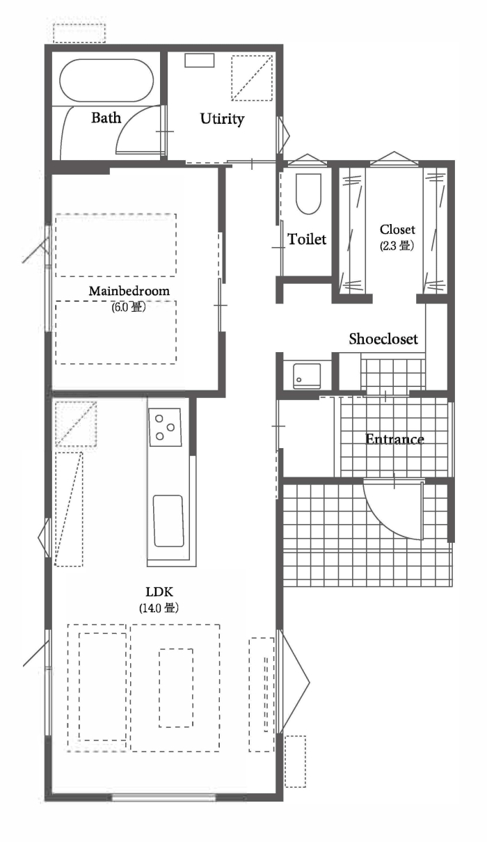
【2~3人家族向け】生活動線にこだわったシンプルな平屋
生活動線にこだわった2LDK平屋。リビングから寝室へ、トイレ・洗面・バスを一直線に配置しているので、朝の準備がスムーズになります。もちろん、大型のシュークローゼットやウォークインクローゼットなどの収納も完備。無駄を省いた動線で、暮らしやすさを追求しました。
◇土地面積の広さ目安
第一種低層住居専用地域:173㎡以上(53坪以上)
第二種中高層住居専用地域:144㎡以上(44坪以上)
※諸条件により異なります。
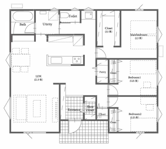
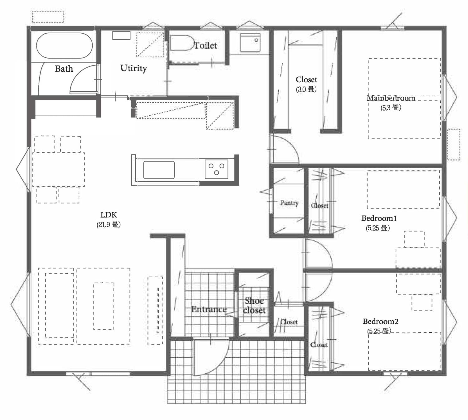
【3~4人家族向け】プライバシー空間を確保した大きなリビングの家
3つの洋室を一列に配置した、プライバシーに配慮した3LDK平屋です。21.9帖の広々としたリビングは、家族団らんの場に最適。各部屋へスムーズに移動できる動線も魅力です。ゆったりとした空間で、快適な暮らしを実現します。
◇土地面積の広さ目安
第一種低層住居専用地域:193㎡以上(59坪以上)
第二種中高層住居専用地域:161㎡以上(49坪以上)
※諸条件により異なります。
平屋のための土地探しは竹内建設へ
事例でもご紹介したとおり、竹内建設では快適性と意匠性を兼ね備えた平屋プランをご用意しています。
構造材には、強度が強く腐りにくい北海道産カラマツを取り入れ、構造材をあえて見せることで空間の広がりを演出しています。
また、断熱性能は最高ランクの「7」を取得。夏涼しく、冬暖かい快適な住まいを実現しています。「内と外とつながる平屋」でご紹介した平屋のモデルハウスは、ご見学受付中です。部屋ごとの温度差が少ない住まいを、ぜひご体感ください。
>>資料請求はこちら
関連記事:【実例つき】おしゃれな平屋を建てるコツ5選!メリット・デメリットも解説
まとめ
平屋の家づくりにおいて、どのような広さの土地が必要なのか、またどのような間取りが目安になるのかを中心に解説しました。いずれにおいても、家族構成やライフスタイルに合わせ、建築費用と土地代のバランスを考慮した家づくりが望ましいでしょう。
ここ数年、平屋の建築戸数が増加傾向にあるほど、人気が高いです。もしも平屋の家づくりに興味のある方は、建築実績豊富な竹内建設へご相談ください。おひとりお一人にぴったりなプランをご提案いたします。




